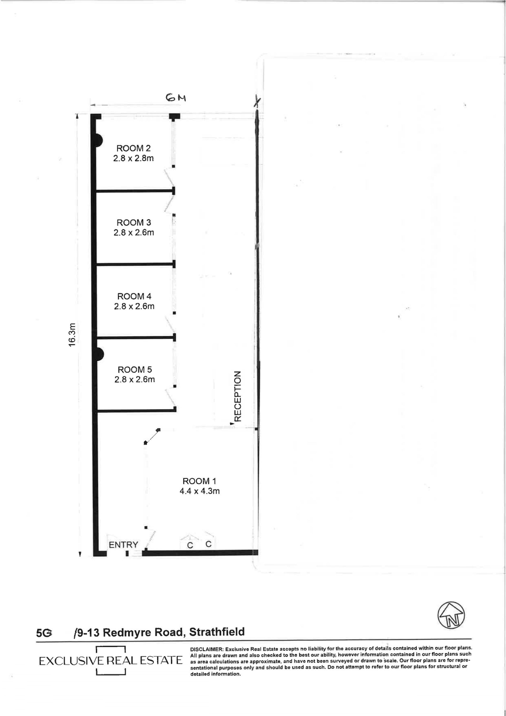
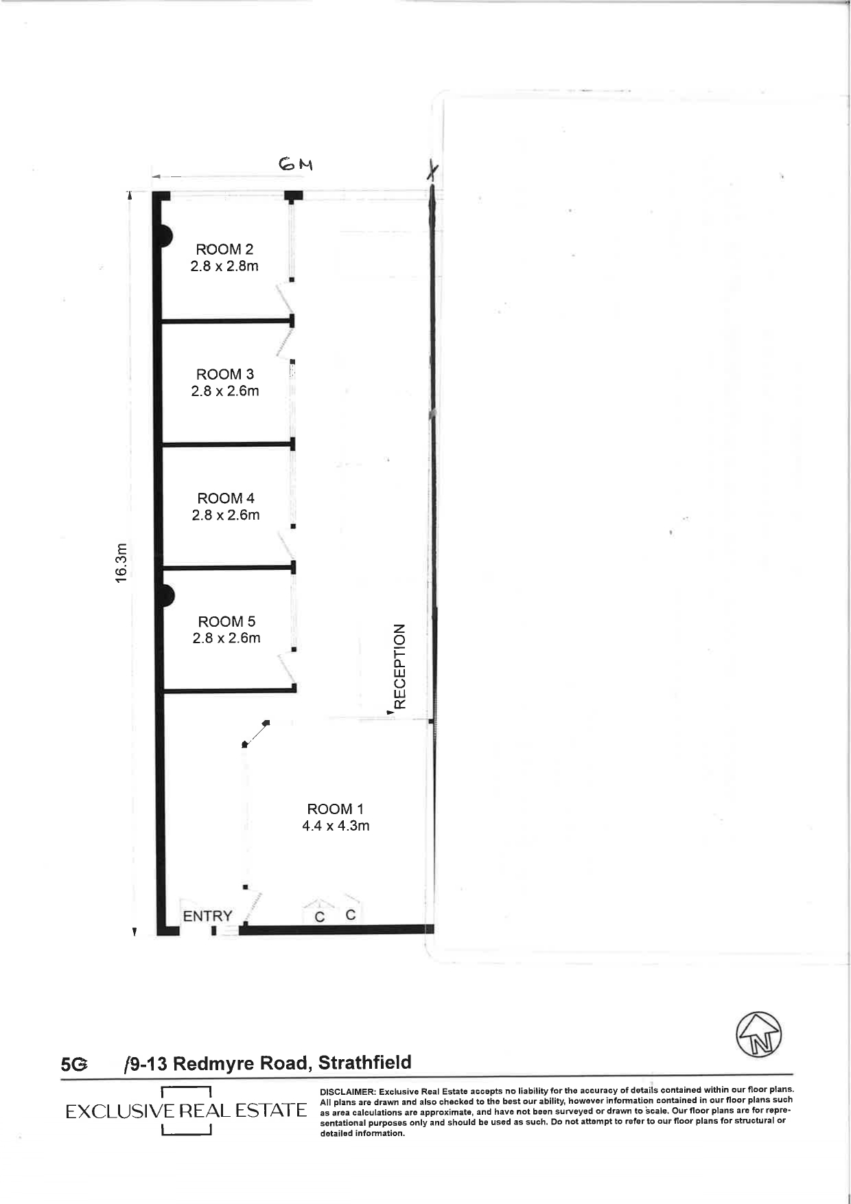
Located in the heart of Strathfield within the popular Redmyre House, this versatile office suite offers a professional and convenient workspace just 5 minutes to Strathfield Station and 2 minutes to the M4.
Featuring:
- Approx. 99 sqm
- 2 secure car spaces
- 4 offices + meeting room + reception
- Air conditioning
- Modern fitout/furniture - optional furniture can be removed
- Lift access
- Shared amenities
- On-site building manager
A quality office in a sought-after location, ideal for a range of professional uses.





























