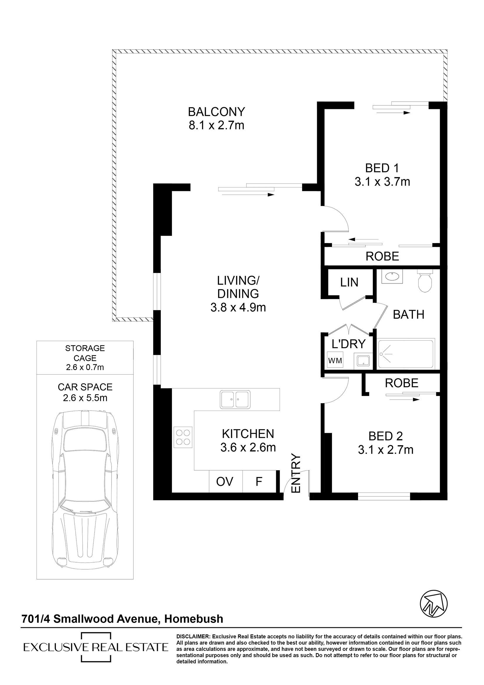
Nestled on the seventh floor within the "Bello" complex, this contemporary apartment offers a hassle-free lifestyle in a serene setting. Boasting all the essentials for effortless living, this apartment presents an airy, open-plan layout with an abundance of natural light. The expansive living and dining room flows into an oversized, North-facing balcony, ideal for entertaining.
With Homebush's amenities within walking distance, this property grants a low-maintenance lifestyle ideal for first home buyers or savvy investors. You will love modern features including split system air conditioning, timber flooring throughout and European kitchen appliances making everyday living a breeze. The main bedroom features balcony access with built-in wardrobes in both, while the second bedroom can be utilized as an additional bedroom or study.
Features you will love:
- Stylish kitchen equipped with Smeg stainless steel appliances, gas cooking and ample storage
- Contemporary bathroom with combined bath and shower
- Internal laundry and linen cupboard
- Secure parking space and storage cage
Within moments, you'll find yourself near:
Paddy's Markets Flemington
Flemington Station
DFO Homebush
Strathfield Plaza
Local Schools include:
Homebush Public School
Homebush Boys High School
Santa Sabina College
St Patrick's College














