25/11/2021
$2,120.00
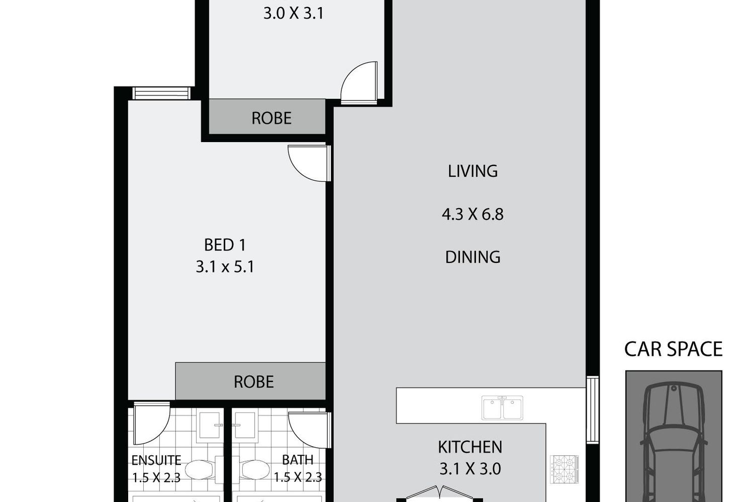
Situated on the fourth floor in the Enia complex this near new two bedroom apartment is equipped with all of the essentials for easy care-free living, presenting an ideal floorplan with open plan living and ample natural light.
Boasting spacious and airy interiors, this quality home is fit with quality finishes and fittings that are sure to impress.
Perfectly positioned within walking distance to all amenities that Homebush has to offer, you'll enjoy a low maintenance lifestyle allowing you more downtime to relax and enjoy life's simple pleasures.
• Spacious combined dining and lounge room, that flows to an entertaining balcony
• Sleek gas kitchen with stainless steel stainless steel appliances and Stone benchtops, and integrated dishwasher
• Well-appointed bedrooms, with mirrored builtins
• Generous master bedroom with ensuite
• Luxurious fully tiled bathroom with frameless showers
• Secure building, video intercom, secure car space with internal access
• Ducted, zone fans reverse cycle air conditioning
• Located within close proximity to schools, Bakehouse Quarter, Rhodes Waterside, DFO, Flemington Markets, eateries,
• Within walking distance to, Homebush train station & bus stops as well as easy access to major arterial roads including the M4 and Parramatta Road











































































